37 Logements
Rennes (35)
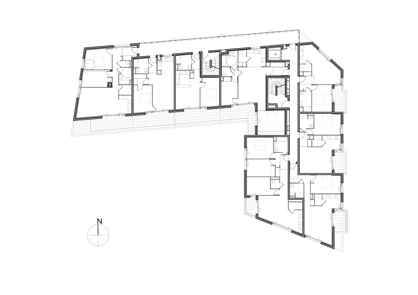
Projet de 37 logements collectifs
Client
- Aménageur
- Territoires publics
- Maîtrise d’Ouvrage
- Archipel Habitat
Equipe
- Ouest structures (Structures), Thalem (Fluides, thermique),
- Lemonnier (Economiste), Hernot (Acoustique)
Mission
- Conception et visa architectural
Données
- Calendrier
- Chantier cours
- Coût
- 2.8 M€HT
- Surfaces
- SHAB : 2329 m²
- SDP : 2647 m²
- Certification
- Projet certifié NF habitat HQE
- Réglementation thermique RT2012 – 10% (objectif – 20%)





