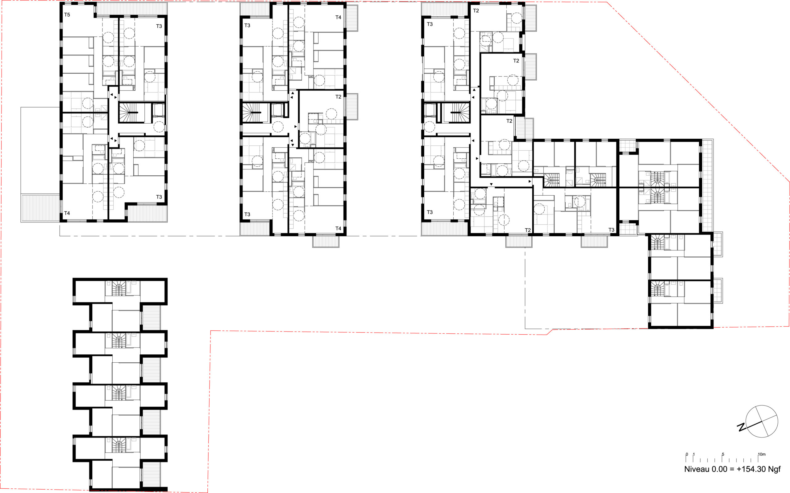
83 Logements
Guyancourt (78)
Projets de 83 logements (42 logements sociaux, 37 logements accession et 4 maisons)
Client
- SCCV Les Garennes
- GMB Invest (ICM) / Sofim
- 1001 Vies Habitat : bailleur social
Equipe
- Symoe (thermique et environnement : études),
- MCpaysages (paysagiste)
- Optibat (économie)
- Helios (Thermique)
Mission
- Mission complète
Données
- Calendrier
- Livraison aout 2020
- Coût
- 9,4 M€HT
- Surfaces
- 6300 m² SDP logements
- Certification
- RT 2012 -10%
- NF Habitat HQE
- Photos : Stéphane Chalmeau






























