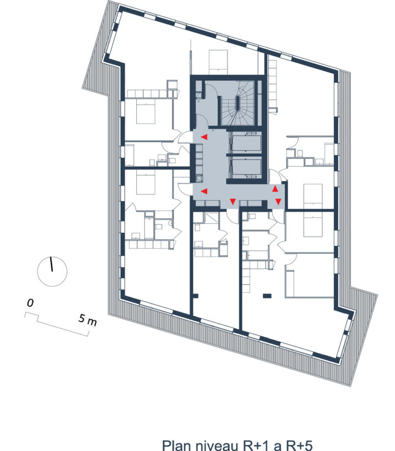
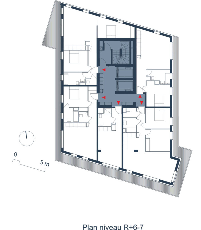
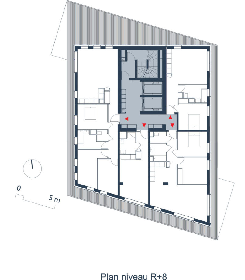
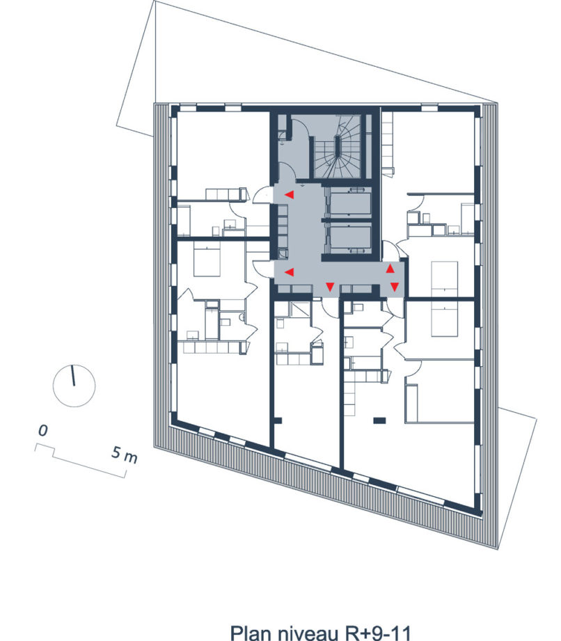
69 Logements
Annemasse (74)
Projet de 69 logements collectifs et commerces
Client
- SCi Chablais Parc / Virgil (Paris)
Equipe
- Evp (Structures), Choulet (Fluides, thermique), Bureau Michel Forgue (Economiste), Atelier du Bocal (Paysagiste)
Mission
- complète
Données
- Calendrier
- Etudes Permis de Construire (06/2014)
- Coût
- 14.1 M€HT
- Surfaces
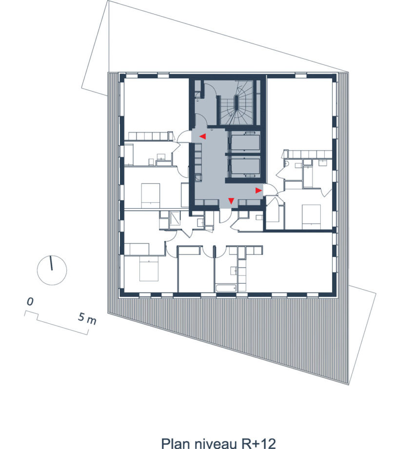
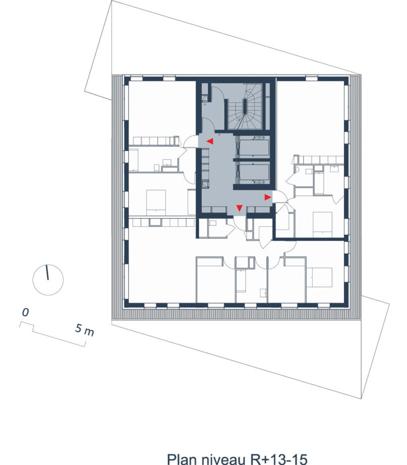
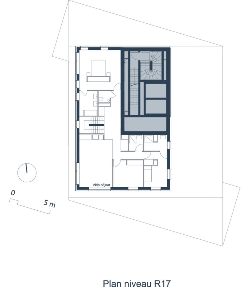
- 4290 m² SPlancher logements
- 980 m² Surface GLA commerces
- Certification
- RT2012














